Chapelle de l’ancien hospice du Petit Paris
– Grasse
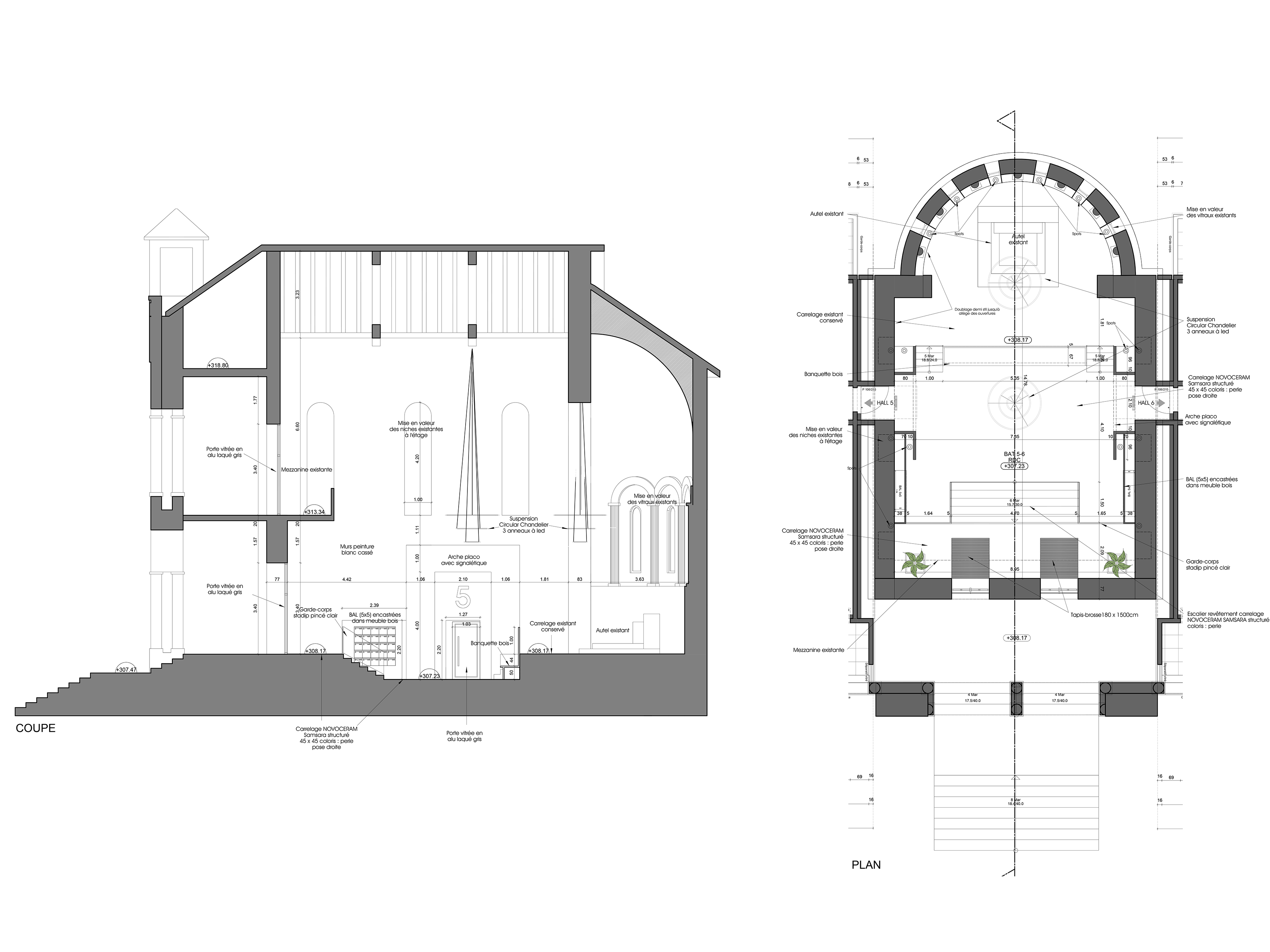
Rénovation de la Chapelle de l’Ancien Hospice du Petit Paris.
Lauréat du concours – Appel d’offres du Centre Hospitalier de Grasse.
Lauréat de la pyramide d’argent « Grand prix régional 2021» FPI Cote d’Azur – Corse.
Chapelle de l’ancien hospice du Petit Paris
– Grasse
Rénovation de la Chapelle de l’Ancien Hospice du Petit Paris.
Lauréat du concours – Appel d’offres du Centre Hospitalier de Grasse.
Lauréat de la pyramide d’argent « Grand prix régional 2021» FPI Cote d’Azur – Corse.






